The Bluff, Medford NJ

The Bluff, Medford NJ

The Bluff Neighborhood in Medford, New Jersey is one of Medford’s most prestigious and tucked-away communities made up of 28 plots of land bordering Centennial Lake. The homes in this Bob Meyer community are large and stately properties with an architectural design intended to mimic the big beautiful homes you might see on the Main Line through Bucks County, PA and Philadelphia. They feature timeless elements of stonework, farmhouse dormers and keystone window arches. The interiors boast dramatic foyers, impressive millwork, library or study retreats and gourmet kitchens, to name a few.
 
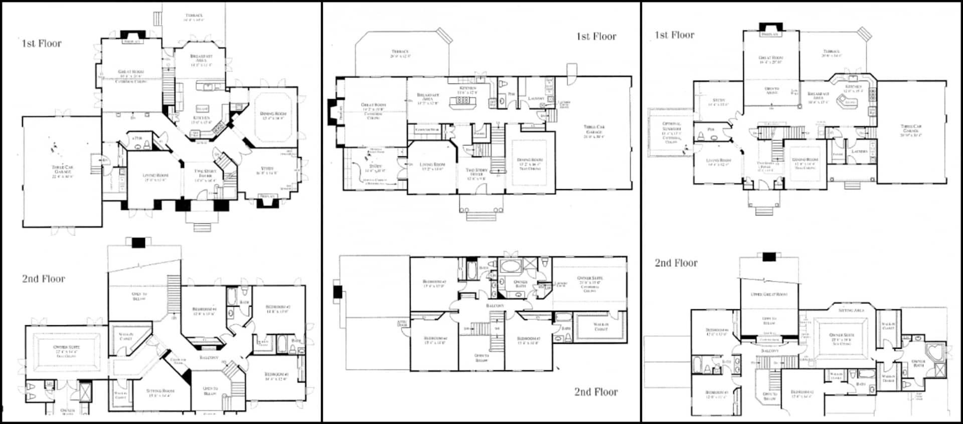
Built in the year 2000, you can find these homes sited on Bortons Road, Overlook Court and Bluff View. The five design models and their original listing prices are the Ashbourne – $633,900, Glenmoor – $657,900, Westover – $744,900, Preston – $754,900 and Wickford – $774,900 all of which have increased in value over the past 20 years. Today, most of these homes tip the scales at upwards of $1.5 million, particularly the homes with prime lakefront views. The community itself offers homeowners privacy and quiet living, with accessibility to lakeside activities including boating, kayaking, swimming, nature hikes and enjoyment of the small beaches at your leisure. In terms of current real estate trends, homes listed for sale in The Bluff typically last a bit longer on the market at roughly 180-220 days.

Photos and Floorplans of The Bluff Neighborhood in Medford, NJ

Work With Us

Pat McKenna Realtors spares no expense in keeping up-to-date on all the latest technological trends. Yet despite the drive for technology, Pat McKenna Realtors still remains true to its original hometown ethic of one-on-one personal service without all the corporate nonsense.

Follow Us on Instagram